Casa VIRGEN DEL LIBRO / Rancagua
Ubicación: PASAJE VIRGEN DEL LIBRO
RANCAGUA
O'HIGGINS
CHILE
Año Proyecto : 2018
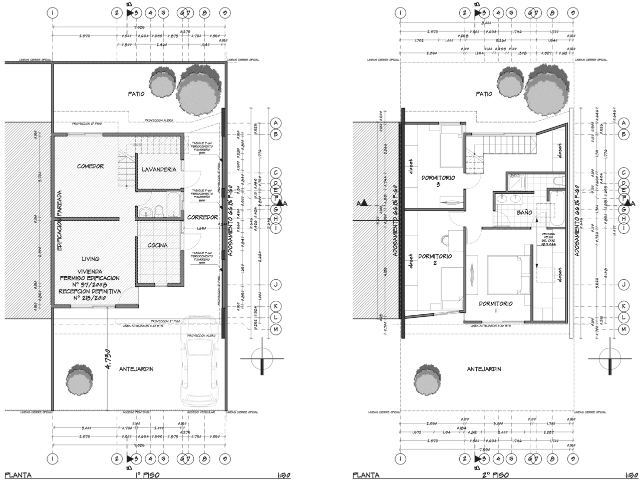
Superficie Construcción: 101,8 m²
Superficie Terreno: 129,2 m²
Materialidad: Tabique Metalcon / Volcanita
Arquitectura / Fotográfias / Dibujo: Cristian Estrada Massera







